Massivhaus ID : Bungalow 75
Kauf Bungalow
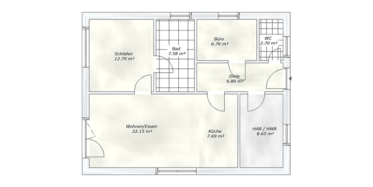
Unser Bungalow 75 in Massivbauweise, Wärmepumpe, Lüftungsanlage und Fußbodenheizung besticht durch seine Kombination aus gradlinigem Grundriss und ebenerdiger Bauweise.
Das Wohnzimmer mit offener Küche von ca. 30m² ist ausreichend groß, um netten Besuch zu empfangen. Es ist ausreichend Platz für einen Esstisch, an dem sich die ganze Familie mit Ihren Kindern und Enkeln treffen können.
Zusätzlich gibt es ein Schlafzimmer mit ca. 13m² und ein kleines Büro oder Gästezimmer für Besuch. Gern können wir die Raumaufteilung nach Ihren Wünschen anpassen.
Zusätzliche Informationen
- Etagen: 1
- Luftwärmepumpe: ja



