Massivhaus ID : Schneeberg-1
Kauf Doppelhäuser / EFH mit Einliegerwohnung
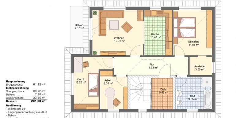
Die Stadtvilla Schneeberg bietet 2 Familien ein tolles Wohngefühl in einer schicken Stadtvilla.
Toll ist im Obergeschoss ein großer Balkon und im Erdgeschoss eine überdachte Terrasse.
Der Grundriss kann wie bei allen unseren Häusern vergrößert werden und die Raumaufteilung nach Ihren Wünschen erfolgen.
Zusätzliche Informationen
- Erdwärmeheizung: ja
- Etagen: 2





